Mieszkanie za remont
Mieszkanie za remont
Więcej informacji na stronie BIP Gdynia:
Uchwała
UCHWAŁA NR XXIII/557/25 RADY MIASTA GDYNI
z dnia 22 października 2025 r.
w sprawie zasad wynajmowania lokali mieszkalnych wchodzących w skład mieszkaniowego zasobu Gminy Miasta Gdyni
Zarządzenie z Regulaminem
Zarządzenie nr 1930/25/IX/L
z dnia 25 października 2025 r.
w sprawie ustalenia Regulaminu dot. trybu i zasad wynajmowania lokali mieszkalnych przeznaczonych do samodzielnego remontu
Wzór Umowy
Wykaz lokali
Wykaz lokali w programie "Mieszkanie za remont" w Gdyni
| L.P. | Ulica | Powierzchnia | Więcej |
|---|---|---|---|
01 | Abrahama | 22,92 m2 | Więcej |
02 | Bp. Dominika | 38,03 m2 | Więcej |
03 | Chylońska | 29,24 m2 | Więcej |
04 | Chylońska | 39,19 m2 | Więcej |
05 | Gen. Maczka | 35,51 m2 | Więcej |
06 | Chylońska | 44,87 m2 | Więcej |
07 | Chabrowa | 46,35 m2 | Więcej |
08 | Wójta Radtkego | 52,20 m2 | Więcej |
09 | Dąbrowskiego | 37,97 m2 | Więcej |
10 | Dąbrowskiego | 37,76 m2 | Więcej |
11 | Górna | 30,94 m2 | Więcej |
12 | Górna | 30,39 m2 | Więcej |
13 | Kleeberga | 45,30 m2 | Więcej |
14 | Mieszkowskiego | 44,14 m2 | Więcej |
15 | Opata Hackiego | 26,91 m2 | Więcej |
16 | Pawia | 43,00 m2 | Więcej |
17 | Przemyska | 44,28 m2 | Więcej |
18 | Świecka | 39,19 m2 | Więcej |
19 | Świecka | 46,48 m2 | Więcej |
20 | Warszawska | 40,11 m2 | Więcej |
21 | Wachowiaka | 37,15 m2 | Więcej |
22 | Wachowiaka | 36,94 m2 | Więcej |
23 | Bp. Dominika | 55,11 m2 | Więcej |
24 | Zamenhofa | 46,78 m2 | Więcej |
25 | Zamenhofa | 27,00 m2 | Więcej |
26 | Waszyngtona | 46,73 m2 | Więcej |
27 | Widna | 52,63 m2 | Więcej |
28 | Widna | 52,10 m2 | Więcej |
29 | Widna | 20,10 m2 | Więcej |
30 | Zielona | 45,80 m2 | Więcej |
01 - Abrahama
Dzielnica | Śródmieście |
Ulica | Abrahama |
Kondygnacja | VI |
Winda | nie |
Powierzchnia użytkowa | 22,92 m2 |
Powierzchnia mieszkalna (pokoi) | 12,60 m2 |
Liczba pokoi | 1 |
Kuchnia | tak |
Ogrzewanie | msc |
WC | nie |
Łazienka | tak |
Dodatkowe informacje |
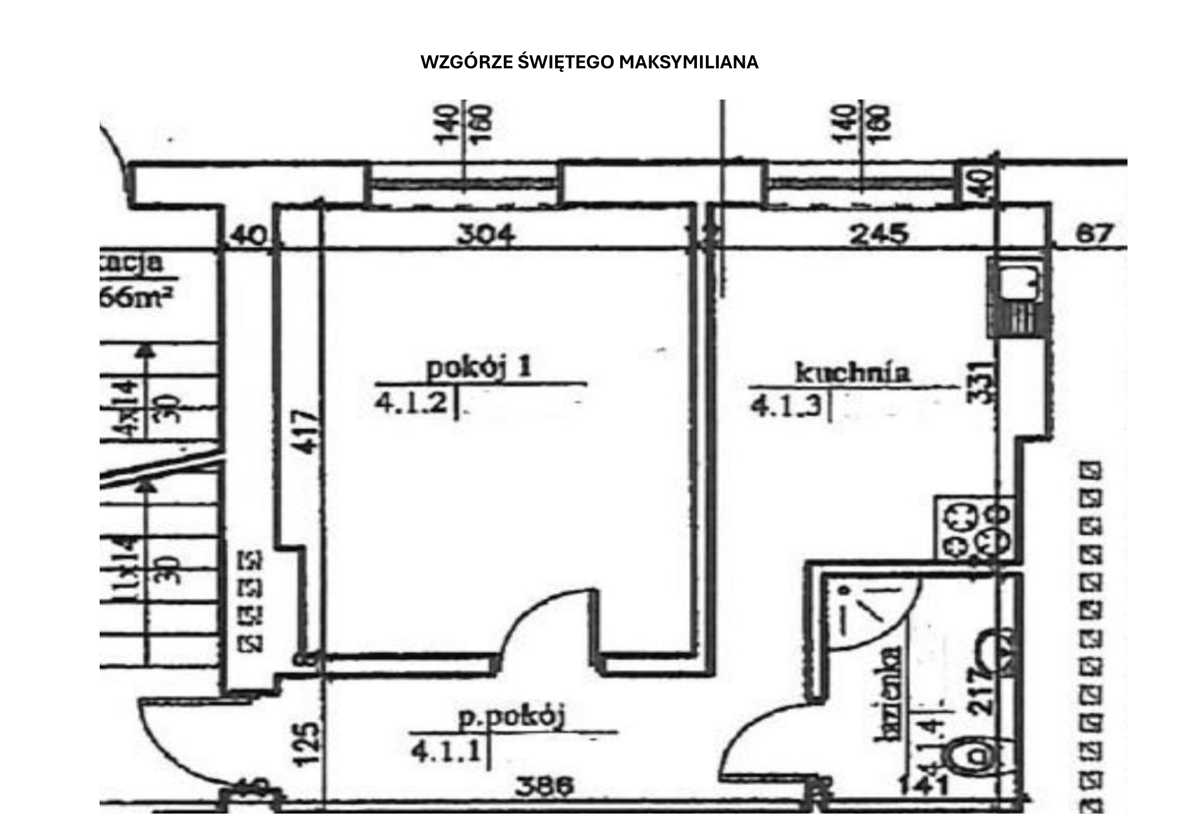
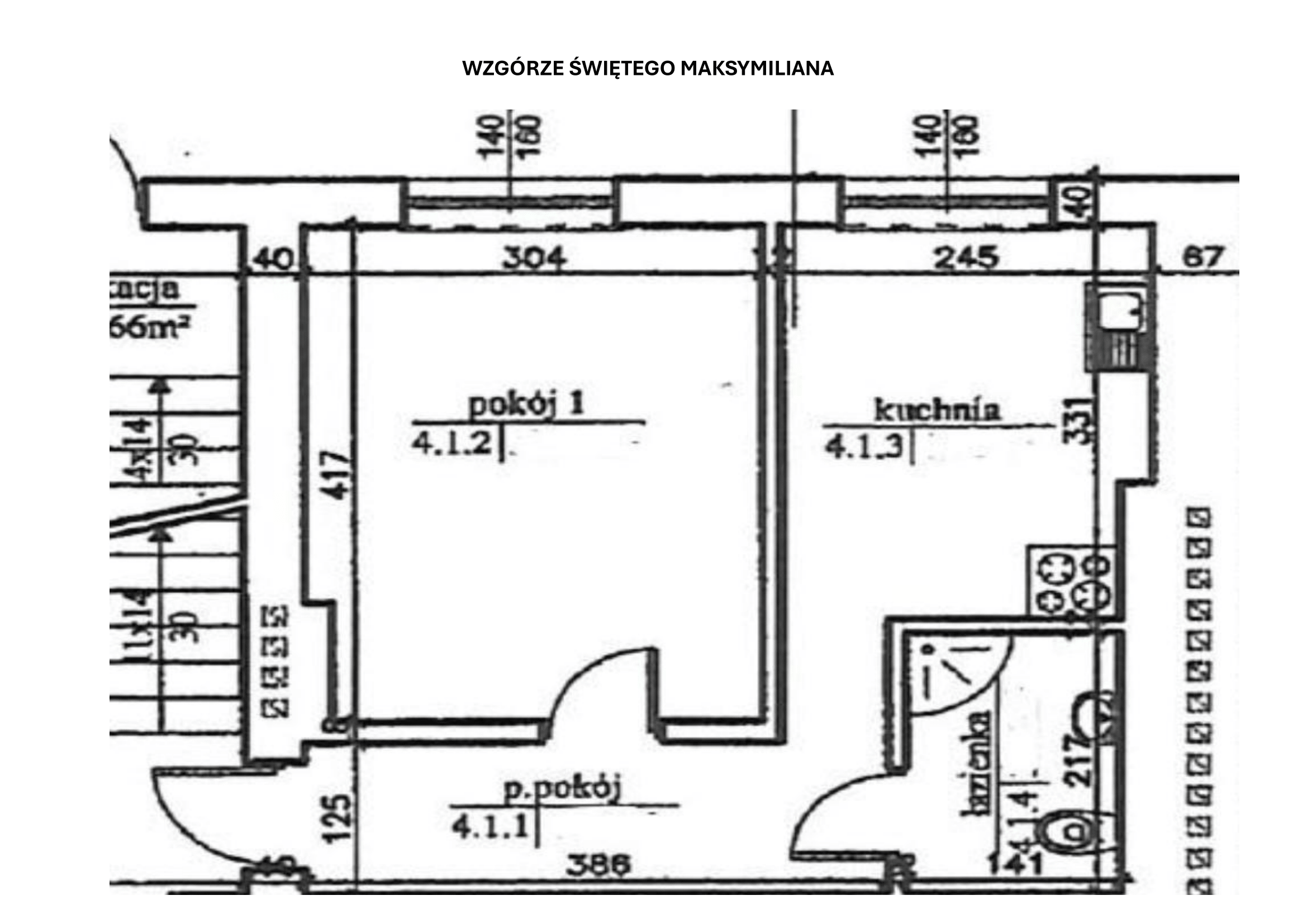
02 - Bp. Dominika
Dzielnica | Wzgórze Św. Maksymiliana |
Ulica | Bp. Dominika |
Kondygnacja | I (parter) |
Winda | nie |
Powierzchnia użytkowa | 38,03 m2 |
Powierzchnia mieszkalna (pokoi) | 22,99 m2 |
Liczba pokoi | 2 |
Kuchnia | tak |
Ogrzewanie | msc |
WC | nie |
Łazienka | tak |
Dodatkowe informacje |
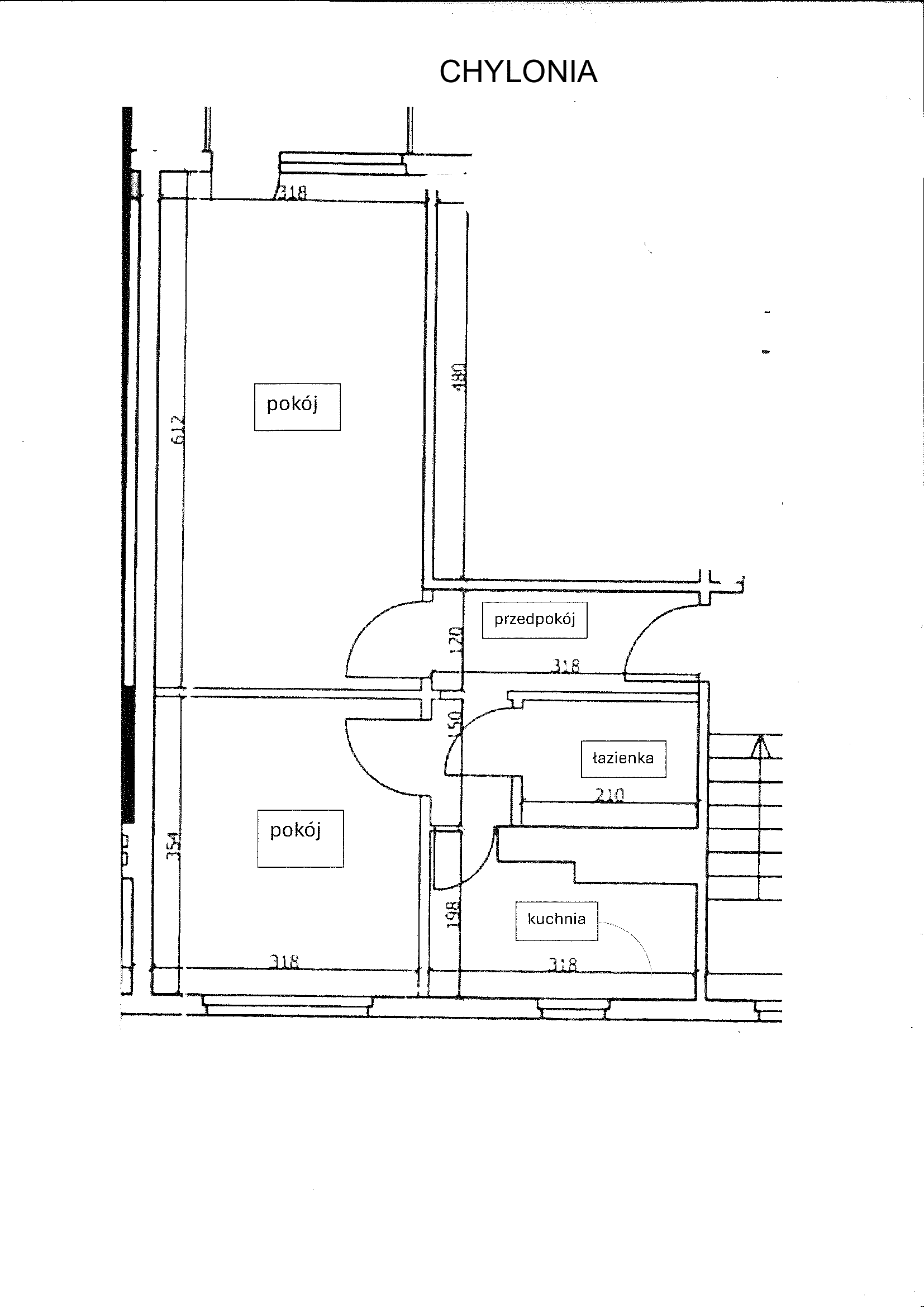
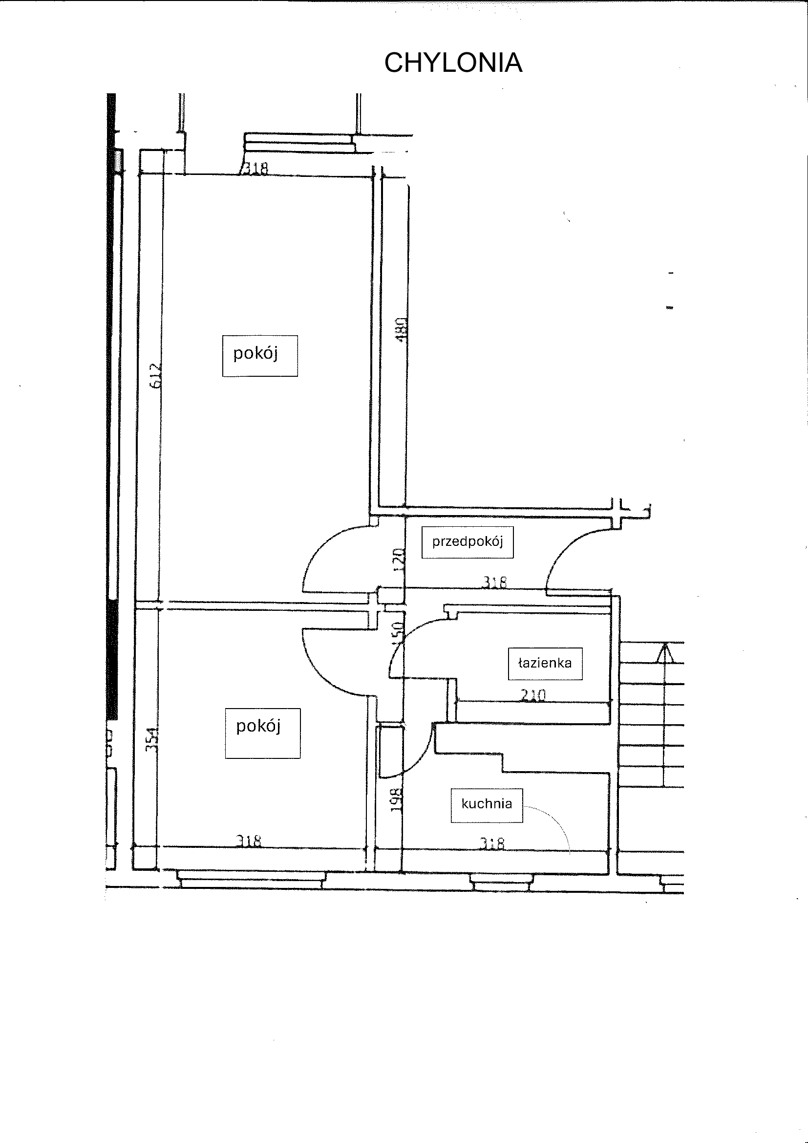
03 - Chylońska
Dzielnica | Chylonia |
Ulica | Chylońska |
Kondygnacja | VI |
Winda | nie |
Powierzchnia użytkowa | 29,24 m2 |
Powierzchnia mieszkalna (pokoi) | 15,17 m2 |
Liczba pokoi | 1 |
Kuchnia | tak |
Ogrzewanie | msc |
WC | nie |
Łazienka | tak |
Dodatkowe informacje | konieczność przywrócenia funkcjonalności pomieszczeń zgodnie z rzutami |
04 - Chylońska
Dzielnica | Chylonia |
Ulica | Chylońska |
Kondygnacja | II |
Winda | nie |
Powierzchnia użytkowa | 39,19 m2 |
Powierzchnia mieszkalna (pokoi) | 24,18 m2 |
Liczba pokoi | 2 |
Kuchnia | tak |
Ogrzewanie | msc |
WC | nie |
Łazienka | tak |
Dodatkowe informacje |
05 - Gen.Maczka
Dzielnica | Wzgórze Św. Maksymiliana |
Ulica | Gen. Maczka |
Kondygnacja | III |
Winda | nie |
Powierzchnia użytkowa | 35,51 m2 |
Powierzchnia mieszkalna (pokoi) | 23,98 m2 |
Liczba pokoi | 2 |
Kuchnia | tak |
Ogrzewanie | piec kaflowy |
WC | tak |
Łazienka | nie |
Dodatkowe informacje |
06 - Chylońska
Dzielnica | Chylonia |
Ulica | Chylońska |
Kondygnacja | V |
Winda | nie |
Powierzchnia użytkowa | 44,87 m2 |
Powierzchnia mieszkalna (pokoi) | 31,06 m2 |
Liczba pokoi | 2 |
Kuchnia | tak |
Ogrzewanie | msc |
WC | nie |
Łazienka | tak |
Dodatkowe informacje |
07 - Chabrowa
Dzielnica | Pustki Cisowskie-Demptowo |
Ulica | Chabrowa |
Kondygnacja | IV |
Winda | nie |
Powierzchnia użytkowa | 46,35 m2 |
Powierzchnia mieszkalna (pokoi) | 28,65 m2 |
Liczba pokoi | 2 |
Kuchnia | tak |
Ogrzewanie | msc |
WC | tak |
Łazienka | tak |
Dodatkowe informacje |
08 - Wójta Radtkego
Dzielnica | Śródmieście |
Ulica | Wójta Radtkego |
Kondygnacja | II |
Winda | nie |
Powierzchnia użytkowa | 52,20 m2 |
Powierzchnia mieszkalna (pokoi) | 34,17 m2 |
Liczba pokoi | 2 |
Kuchnia | tak |
Ogrzewanie | msc |
WC | nie |
Łazienka | tak |
Dodatkowe informacje |
09 - Dąbrowskiego
Dzielnica | Wzgórze Św. Maksymiliana |
Ulica | Dąbrowskiego |
Kondygnacja | I (parter) |
Winda | nie |
Powierzchnia użytkowa | 37,97 m2 |
Powierzchnia mieszkalna (pokoi) | 26,03 m2 |
Liczba pokoi | 2 |
Kuchnia | tak |
Ogrzewanie | indywidualne gazowe |
WC | nie |
Łazienka | tak |
Dodatkowe informacje |
10 - Dąbrowskiego
Dzielnica | Wzgórze Św. Maksymiliana |
Ulica | Dąbrowskiego |
Kondygnacja | I (parter) |
Winda | nie |
Powierzchnia użytkowa | 37,76 m2 |
Powierzchnia mieszkalna (pokoi) | 26,36 m2 |
Liczba pokoi | 2 |
Kuchnia | tak |
Ogrzewanie | indywidualne gazowe |
WC | nie |
Łazienka | tak |
Dodatkowe informacje |
11 - Górna
Dzielnica | Wzgórze Św. Maksymiliana |
Ulica | Górna |
Kondygnacja | III |
Winda | nie |
Powierzchnia użytkowa | 30,94 m2 |
Powierzchnia mieszkalna (pokoi) | 21,72 m2 |
Liczba pokoi | 1 |
Kuchnia | tak |
Ogrzewanie | msc |
WC | nie |
Łazienka | tak |
Dodatkowe informacje |
12 - Górna
Dzielnica | Wzgórze Św. Maksymiliana |
Ulica | Górna |
Kondygnacja | I (parter) |
Winda | nie |
Powierzchnia użytkowa | 30,39 m2 |
Powierzchnia mieszkalna (pokoi) | 13,73 m2 |
Liczba pokoi | 1 |
Kuchnia | tak |
Ogrzewanie | piec kaflowy |
WC | nie |
Łazienka | tak |
Dodatkowe informacje |
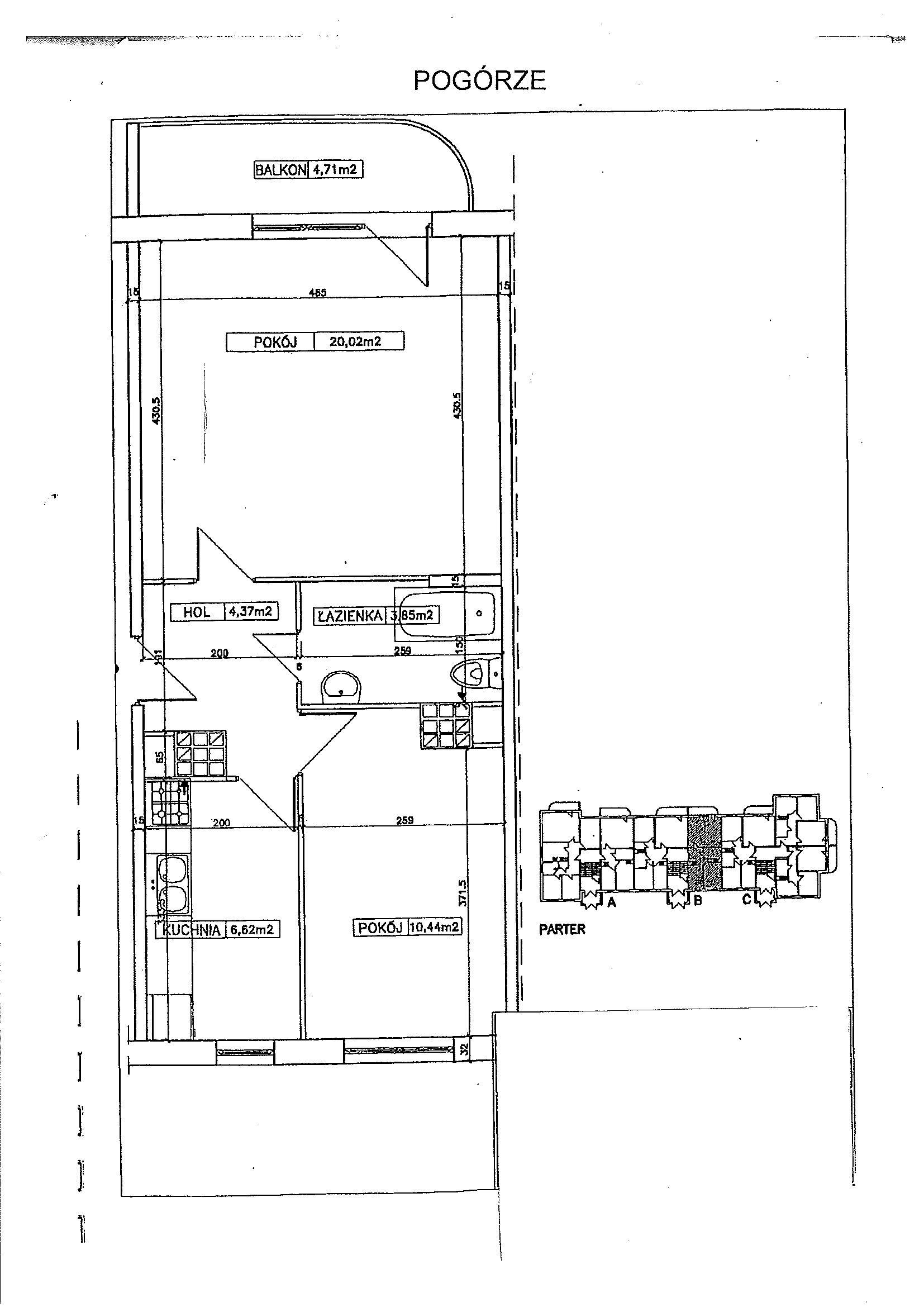
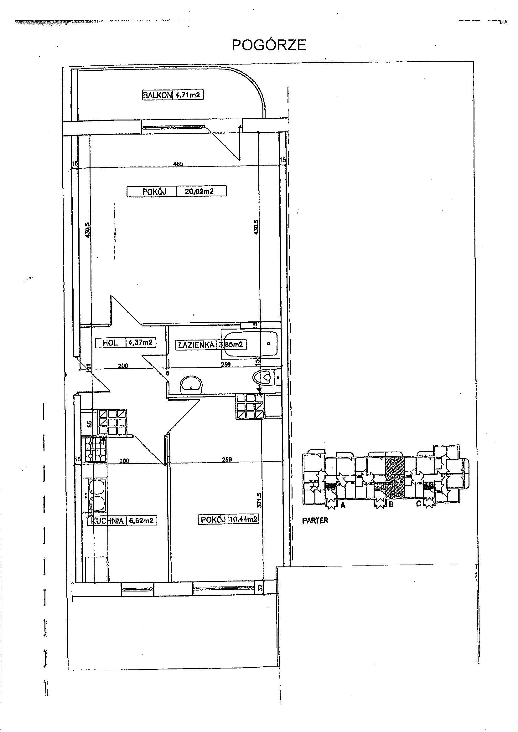
13 - Kleeberga
Dzielnica | Pogórze |
Ulica | Kleeberga |
Kondygnacja | I (parter) |
Winda | nie |
Powierzchnia użytkowa | 45,30 m2 |
Powierzchnia mieszkalna (pokoi) | 30,46 m2 |
Liczba pokoi | 2 |
Kuchnia | tak |
Ogrzewanie | msc |
WC | nie |
Łazienka | tak |
Dodatkowe informacje |
14 - Mieszkowskiego
Dzielnica | Pogórze |
Ulica | Mieszkowskiego |
Kondygnacja | V |
Winda | nie |
Powierzchnia użytkowa | 44,14 m2 |
Powierzchnia mieszkalna (pokoi) | 29,76 m2 |
Liczba pokoi | 2 |
Kuchnia | tak |
Ogrzewanie | msc |
WC | nie |
Łazienka | tak |
Dodatkowe informacje |
15 - Opata Hackiego
Dzielnica | Chylonia |
Ulica | Opata Hackiego |
Kondygnacja | IV |
Winda | nie |
Powierzchnia użytkowa | 26,91 m2 |
Powierzchnia mieszkalna (pokoi) | 21,47 m2 |
Liczba pokoi | 2 |
Kuchnia | wnęka kuchenna |
Ogrzewanie | msc |
WC | tak |
Łazienka | nie |
Dodatkowe informacje |
16 - Pawia
Dzielnica | Pustki Cisowskie-Demptowo |
Ulica | Pawia |
Kondygnacja | II |
Winda | nie |
Powierzchnia użytkowa | 43,00 m2 |
Powierzchnia mieszkalna (pokoi) | 35,50 m2 |
Liczba pokoi | 3 |
Kuchnia | tak |
Ogrzewanie | indywidualne gazowe |
WC | nie |
Łazienka | nie |
Dodatkowe informacje |
17 - Przemyska
Dzielnica | Mały Kack |
Ulica | Przemyska |
Kondygnacja | II |
Winda | nie |
Powierzchnia użytkowa | 44,28 m2 |
Powierzchnia mieszkalna (pokoi) | 28,16 m2 |
Liczba pokoi | 2 |
Kuchnia | tak |
Ogrzewanie | indywidualne gazowe |
WC | nie |
Łazienka | tak |
Dodatkowe informacje |
18 - Świecka
Dzielnica | Chylonia |
Ulica | Świecka |
Kondygnacja | IV |
Winda | nie |
Powierzchnia użytkowa | 39,19 m2 |
Powierzchnia mieszkalna (pokoi) | 24,18 m2 |
Liczba pokoi | 2 |
Kuchnia | tak |
Ogrzewanie | msc |
WC | nie |
Łazienka | tak |
Dodatkowe informacje |
19 - Świecka
Dzielnica | Chylonia |
Ulica | Świecka |
Kondygnacja | IV |
Winda | nie |
Powierzchnia użytkowa | 46,48 m2 |
Powierzchnia mieszkalna (pokoi) | 30,59 m2 |
Liczba pokoi | 2 |
Kuchnia | tak |
Ogrzewanie | msc |
WC | nie |
Łazienka | tak |
Dodatkowe informacje |
20 - Warszawska
Dzielnica | Działki Leśne |
Ulica | Warszawska |
Kondygnacja | II |
Winda | nie |
Powierzchnia użytkowa | 40,11 m2 |
Powierzchnia mieszkalna (pokoi) | 22,48 m2 |
Liczba pokoi | 2 |
Kuchnia | tak |
Ogrzewanie | msc |
WC | nie |
Łazienka | tak |
Dodatkowe informacje |
21 - Wachowiaka
Dzielnica | Wzgórze Św. Maksymiliana |
Ulica | Wachowiaka |
Kondygnacja | II |
Winda | nie |
Powierzchnia użytkowa | 37,15 m2 |
Powierzchnia mieszkalna (pokoi) | 26,09 m2 |
Liczba pokoi | 2 |
Kuchnia | tak |
Ogrzewanie | indywidualne gazowe |
WC | tak |
Łazienka | tak |
Dodatkowe informacje |
22 - Wachowiaka
Dzielnica | Wzgórze Św. Maksymiliana |
Ulica | Wachowiaka |
Kondygnacja | I (parter) |
Winda | nie |
Powierzchnia użytkowa | 36,94 m2 |
Powierzchnia mieszkalna (pokoi) | 25,77 m2 |
Liczba pokoi | 2 |
Kuchnia | tak |
Ogrzewanie | indywidualne gazowe |
WC (w piwnicy) | nie |
Łazienka | nie |
Dodatkowe informacje |
23 - Bp. Dominika
Dzielnica | Wzgórze Św. Maksymiliana |
Ulica | Bp. Dominika |
Kondygnacja | V |
Winda | nie |
Powierzchnia użytkowa | 55,11 m2 |
Powierzchnia mieszkalna (pokoi) | 33,16 m2 |
Liczba pokoi | 2 |
Kuchnia | tak |
Ogrzewanie | msc |
WC | nie |
Łazienka | tak |
Dodatkowe informacje |
24 - Zamenhofa
Dzielnica | Chylonia |
Ulica | Zamenhofa |
Kondygnacja | X |
Winda | tak |
Powierzchnia użytkowa | 46,78 m2 |
Powierzchnia mieszkalna (pokoi) | 31,15 m2 |
Liczba pokoi | 3 |
Kuchnia | tak |
Ogrzewanie | msc |
WC | nie |
Łazienka | tak |
Dodatkowe informacje |
25 - Zamenhofa
Dzielnica | Chylonia |
Ulica | Zamenhofa |
Kondygnacja | IV |
Winda | nie |
Powierzchnia użytkowa | 27,00 m2 |
Powierzchnia mieszkalna (pokoi) | 20,03 m2 |
Liczba pokoi | 2 |
Kuchnia | aneks kuchenny |
Ogrzewanie | msc |
WC | tak |
Łazienka | nie |
Dodatkowe informacje |
26 - Waszyngtona
Dzielnica | Śródmieście |
Ulica | Waszyngtona |
Kondygnacja | I (parter) |
Winda | nie |
Powierzchnia użytkowa | 46,73 m2 |
Powierzchnia mieszkalna (pokoi) | 29,42 m2 |
Liczba pokoi | 2 |
Kuchnia | tak |
Ogrzewanie | msc |
WC | nie |
Łazienka | tak |
Dodatkowe informacje |
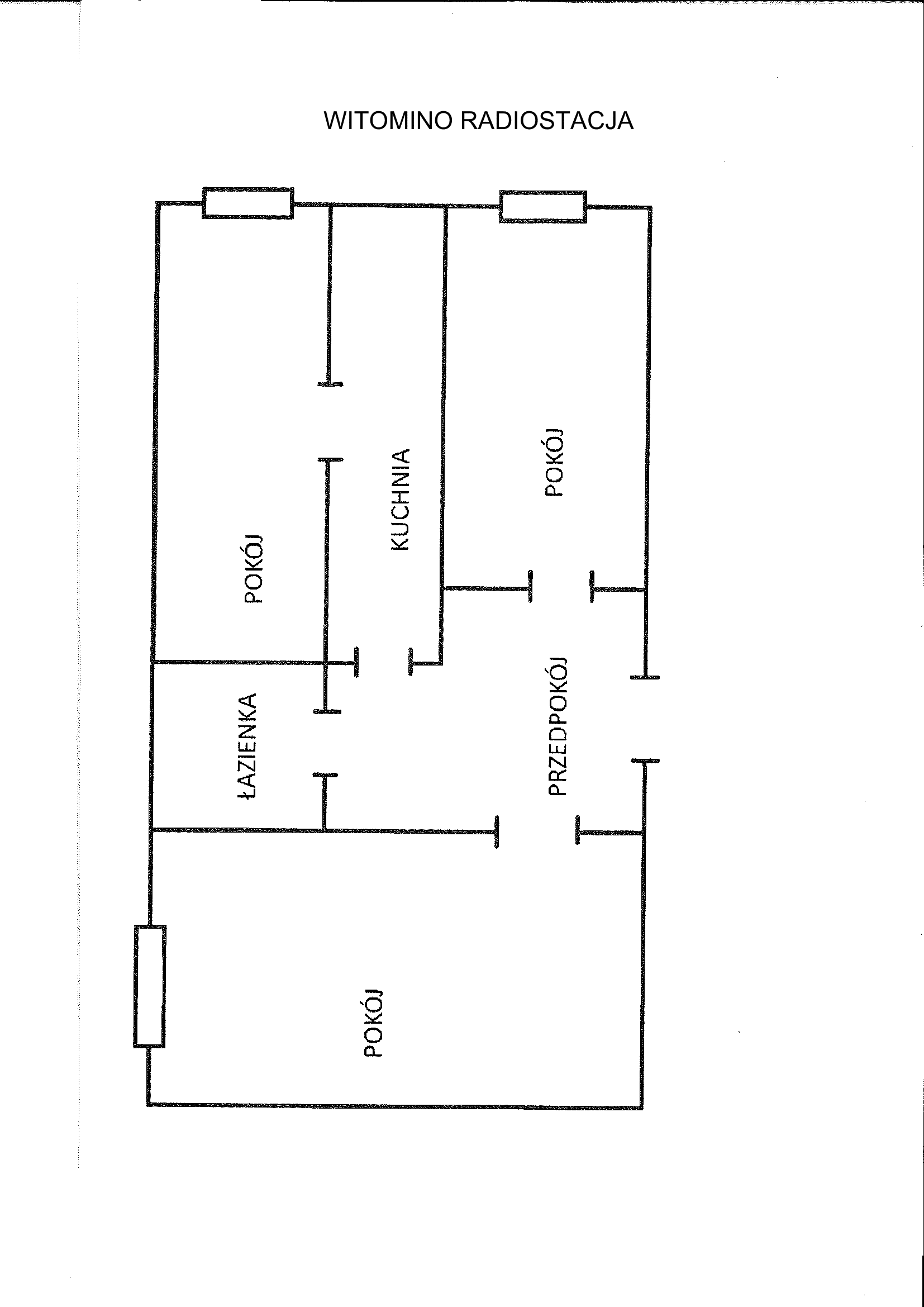
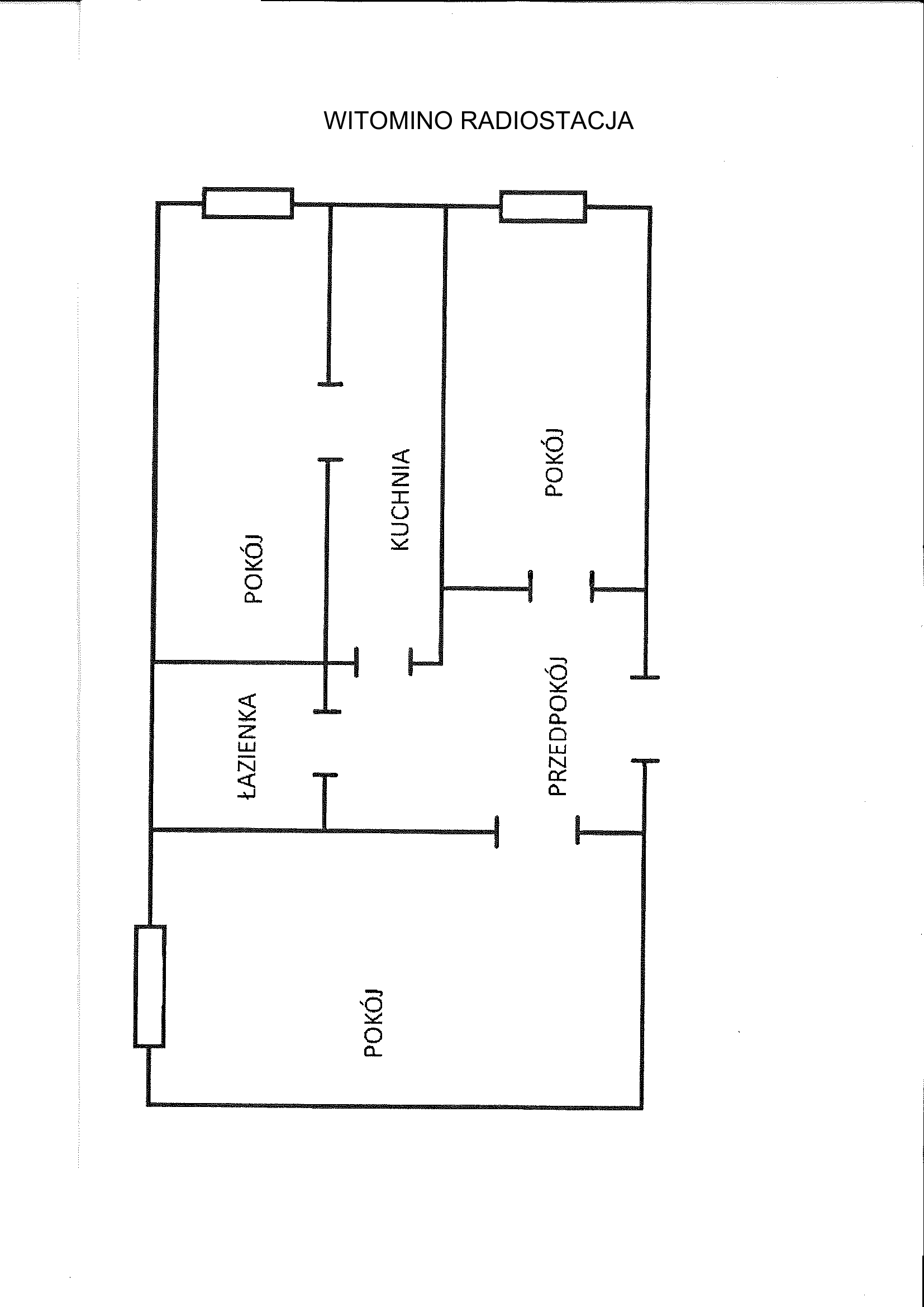
27 - Widna
Dzielnica | Witomino-Radiostacja |
Ulica | Widna |
Kondygnacja | I (parter) |
Winda | nie |
Powierzchnia użytkowa | 52,63 m2 |
Powierzchnia mieszkalna (pokoi) | 39,64 m2 |
Liczba pokoi | 3 |
Kuchnia | tak |
Ogrzewanie | msc |
WC | nie |
Łazienka | tak |
Dodatkowe informacje |
28 - Widna
Dzielnica | Witomino-Radiostacja |
Ulica | Widna |
Kondygnacja | II |
Winda | nie |
Powierzchnia użytkowa | 52,10 m2 |
Powierzchnia mieszkalna (pokoi) | 40,40 m2 |
Liczba pokoi | 3 |
Kuchnia | tak |
Ogrzewanie | msc |
WC | nie |
Łazienka | tak |
Dodatkowe informacje |
29 - Widna
Dzielnica | Witomino-Radiostacja |
Ulica | Widna |
Kondygnacja | IV |
Winda | nie |
Powierzchnia użytkowa | 20,10 m2 |
Powierzchnia mieszkalna (pokoi) | 13,70 m2 |
Liczba pokoi | 1 |
Kuchnia | tak |
Ogrzewanie | msc |
WC | nie |
Łazienka | tak |
Dodatkowe informacje |
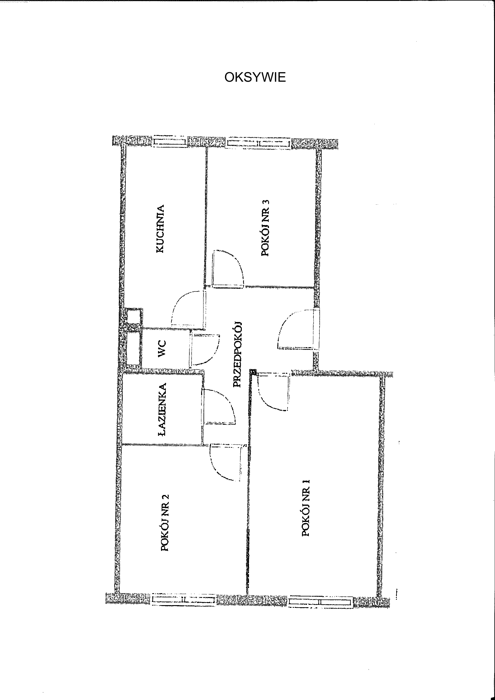
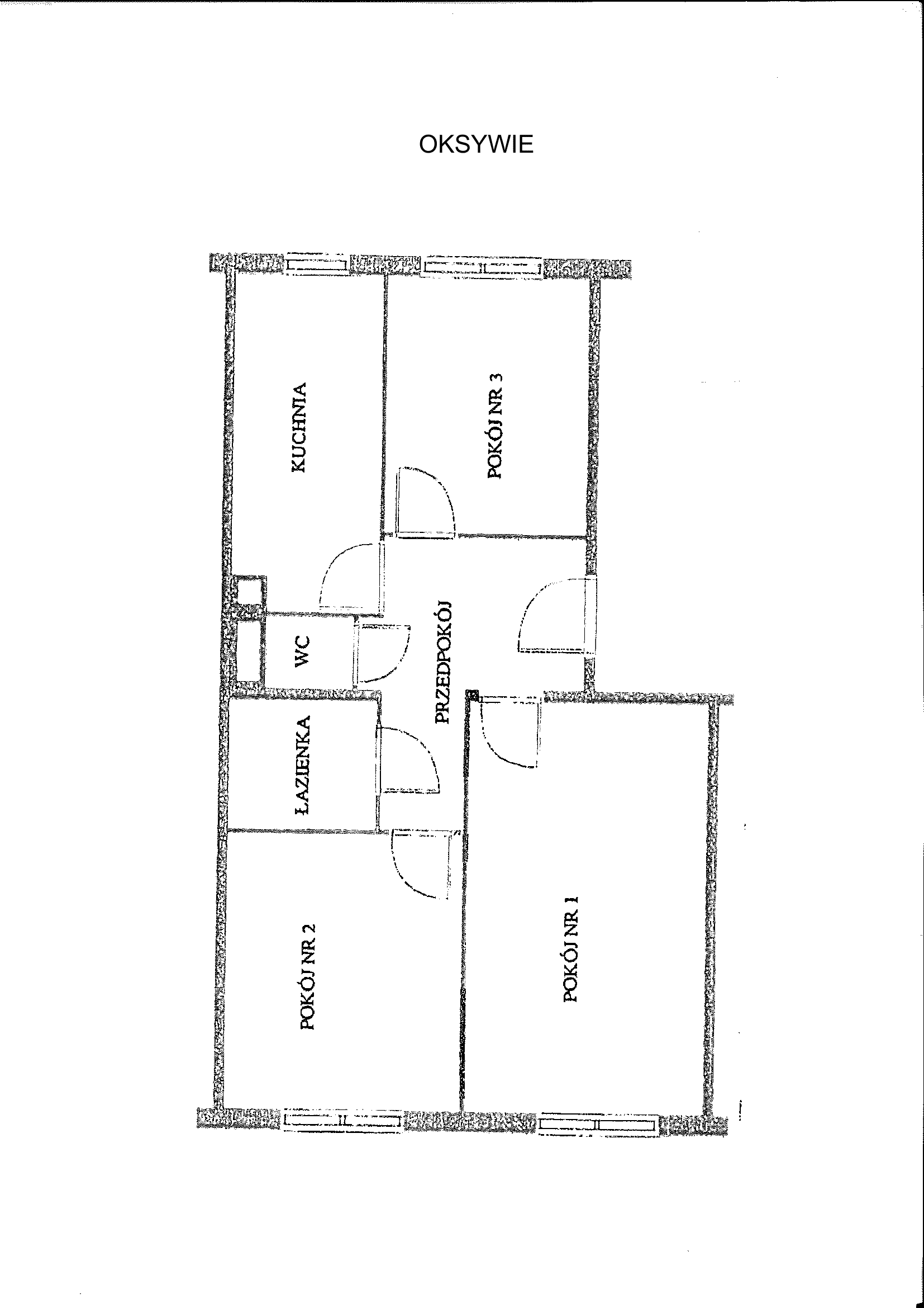
30 - Zielona
Dzielnica | Oksywie |
Ulica | Zielona |
Kondygnacja | IV |
Winda | tak |
Powierzchnia użytkowa | 45,80 m2 |
Powierzchnia mieszkalna (pokoi) | 29,80 m2 |
Liczba pokoi | 3 |
Kuchnia | tak |
Ogrzewanie | gazowe (budynkowe) |
WC | tak |
Łazienka | tak |
Dodatkowe informacje |